当前位置:企业新闻
建议收藏|部分文书档案案卷格式整理(GB/T 9705-2008)
文书档案案卷卷皮分两种,一种是硬卷皮,一种是软卷皮。
硬卷皮格式-硬卷皮外形尺寸:封面尺寸规格采用310 mm×220 mm。

封底尺寸同封面尺寸。
封底三边(上、下、翻口处)要另有70mm宽的折叠纸舌。
卷脊可根据需要分别设10 mm,15 mm,20 mm三种厚度。
用于成卷装订的卷皮,上、下侧装订处要各有20 mm宽的装订纸舌
本标准推荐使用250 g无酸牛皮纸制作案卷硬卷皮。
硬卷皮封面项目
封面项目包括:全宗名称、类目名称、案卷题名、时间、保管期限、件、页数、归档号、档号。

软卷皮格式: 使用软卷皮装订的案卷,必须装人卷盒内保存。
软卷皮外形尺寸:软卷皮设封皮和封底,其封皮和封底采用长宽为297 mmX210 mm的规
软卷皮封面项目:软卷皮封面项目及填写方法均同硬卷皮格式。封面项目尺寸
软卷皮封二项目:软卷皮封二项目包括:顺序号、文号、责任者、题名、日期、页号、备注。
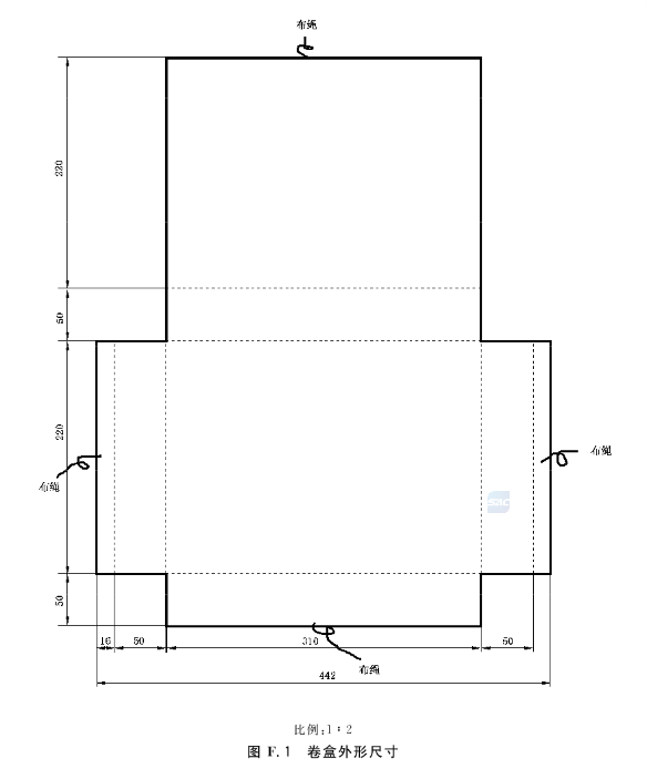
卷盒规格-卷盒外形尺寸:采用310 mmX220 mm(长X宽),其厚度可根据需要分别设置30 mm,40 mm 或50 mm卷盒封面为空白面。卷盒封面和卷脊格式卷盒封面为空白面。卷脊项目包括全宗名称、目录号、年度、起止卷号其中起止卷号填写X X-X X卷,其余项目的填写方法同硬卷皮格式

卷内文件目录格式-用纸幅面尺寸
采用国际标准A4型(即长宽为297 mmx210 mm)。4.2 页边与文字区尺寸卷内目录用纸上白边(天头)宽(20士0.5)mm卷内目录用纸下白边(地脚)宽(15士0.5)mm
卷内目录用纸左白边(订口)宽(25士05)mm

